Доброго времени вам господа конструкторы.
Отступление:
На не без известном сайте, где обозревают товары купленные за бугром восточным, прочитал я обзор о том как человек собрал себе 3D принтер со шпилек "Prusa i2", с этого и началось.
Первым делом прочитал о RepRap и Prusa i3, захотел собрать ее в стальном корпусе, нашел где продается, покидал в корзину на Али необходимые комплектующие. Только вот гложили меня сомнения, как то не спортивно. Почитав еще и образов разных, так вообще показалось что правильно сделал, что не заказал корпус. Решено было строить свой принтер.
Началось мое помешательство без двух дней месяц назад...
Основное:
- Принтер хочется построить для себя, ради хобби, иногда печатать мелкие детали, иногда крупные. Так же часто копаюсь в машине, так что много будет разрабатываться для нее любимой =)
- Т.к. собираюсь в отпуск через недельку, то думаю успею до моделировать каркас, и закупить необходимые части. Такие как алюминиевый профиль, шлифованные валы, листы алюминия/дюрали (для косынок и стола). Почему купить все в отпуске? Потому что в нашем небольшом городке (Усинск) фиг что найдешь, только под заказ, транспортные компании возят только до Ухты, а цена доставки с Ухты до Усинска теми же ТК просто конская. Ну а почта России, полированные валы привезет винтами, а винты валами... Поэтому, если кто либо подскажет где можно выгодно приобрести профиль и валы с гайками в Ярославле или Нижнем Новгороде, буду очень благодарен. Можно с доставкой в те же города.
- Электроника стандарт: mega 2650 rev.3 (16 MHz) + RAMPS 1.4 + полно размерный дисплей + DRV8825 + оптические концевики + Nema 17 (17HS4401)
- Каркас: конструкционный алюминиевый профиль 30х30 или даже 40х40 (посоветуйте, хватит ли 30 или лучше перестраховаться), по X и Y размер 420-430 мм, по Z 600. В нижней части поперечины для крепления двигателя и натяжителей ремня оси Z. (Сейчас проектирую в Блендере, чуть позже добавлю проект).
- Стол: 300х300 (может расширить 350х350). Сразу вопрос по нагревательному столу, 300х300 у китайцев по 25$. Реально ли изготовить из фольгированного стеклотекстолита (посредством фрезеровки дорожек, может с покрытием каким либо материалом)? Или из шлейфа?
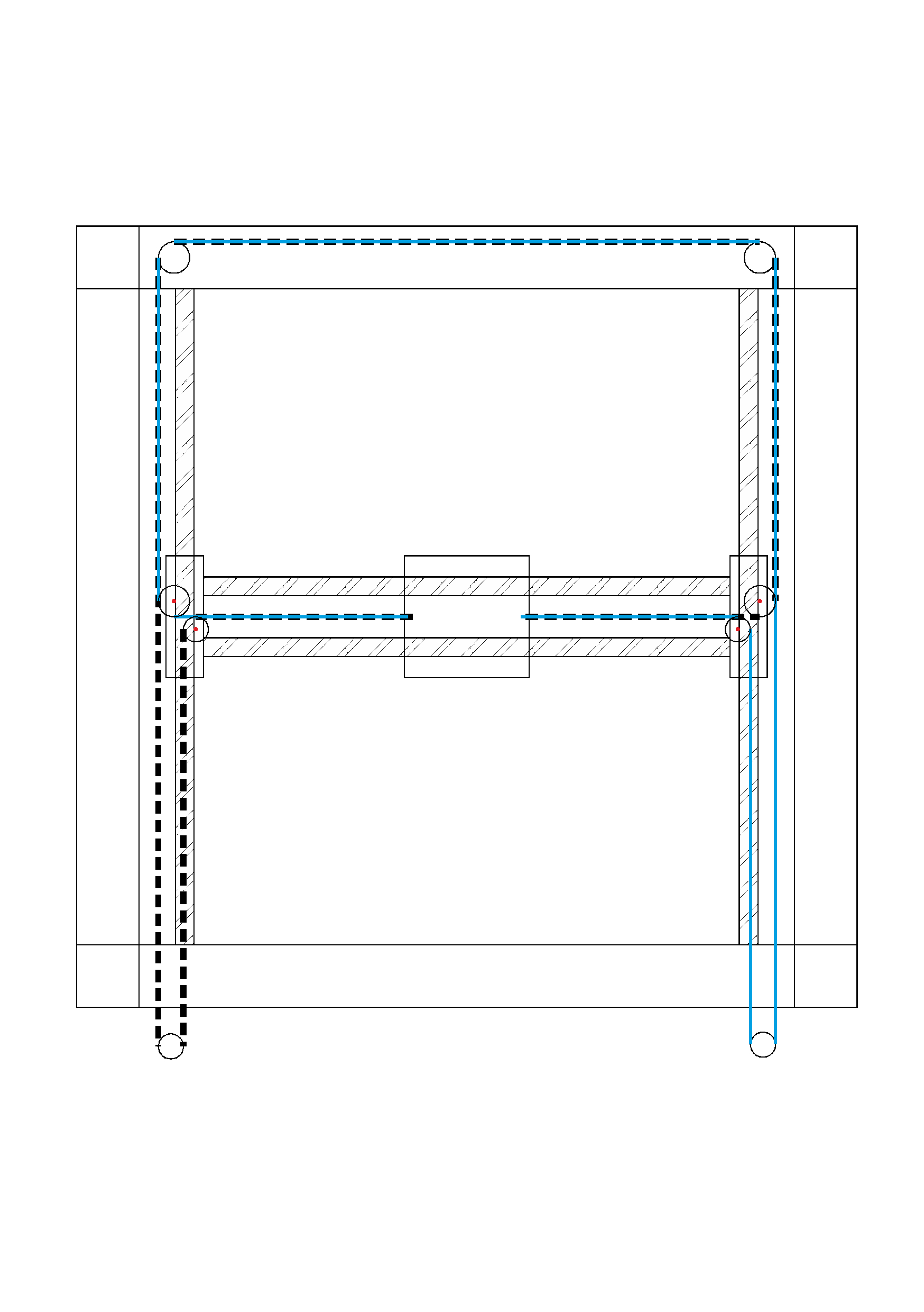
- Ось Z: т.к. стол довольно большой, хочется сделать на 4-х 12мм направляющих и 3-х ходовых трапецеидальных винтах (8,10 или 12мм?), но двигатель использовать всего один с ременной передачей (с уменьшением скорости и увеличением момента), схематическое расположение винтов и ремня, так же на прикрепленном изображении. Справится ли Nema 17 (17HS4401)?
- Ось X,Y: Решено делать CoreXY только вот вышло 2 варианта (предоставлены на изображениях, использовал CorelDRAW), один с пересекающимися ремнями, второй с разной высотой крепления к коретке.
- Ось Y из 12мм валов, Ось X из 8мм валов. По креплениям как по Y так и по X, склоняюсь к варианту разрабатываемого в данной теме forum107/topic11894-105.html , на обычных подшипниках качения. Подойдет ли такой вариант для оси Y или лучше использовать линейные подшипники? (жаль что в теме где продавали мелкие подшипники они уже кончились, судя по сообщениям, так что предстоит их поиск в продаже). Как понимаю сделано в solidworks, и мне еще предстоит его установить и разбираться... А потом еще искать кто сможет мне это распечатать..
- По ремням длинна для Z выходит около 1320 мм (можно от 1300 до 1400, натяжка позволяет), интересует выбор профиля ремня и его ширины 10 или 15мм. Но я никак не могу найти на Али замкнутый ремень профиля GT2, Т2.5 или HTD3M такой ширины.
- Вот и пришел вопрос коретки и хотэнда(ов). Пока смотрю в сторону Bowden (легче), но сможет ли он печатать "мягким" пластиком (типа rubber). А если все таки Bowden то почему бы тогда сразу и не в 2 сопла. (Конечно сначала намучаюсь с настройкой под одно, а так будет задел на 2, останется только подключить). На thingiverse нашел такую конструкцию экструдера под bowden http://www.thingiverse.com/thing:566791 как понимаю через передачу сделано не зря, и усилия там не малые. Возможно есть более лучшие конструкции? Посоветуйте?
В голове за эти пару недель сплошной бардак, но вроде как понемногу разобрался.. Буду благодарен услышать советы =)

