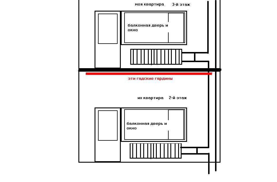
соседи снизу, установили гардины (для штор, эдакие швелерообразные, жестяные)и одним концом то ли прикрепили то ли упёрли в трубу отопления, которая проходит сквозь все этажи, но моя квартира получается ближайшей к этому касанию. Теперь, в течение уже двух лет, каждый день, ни днём (это фиг с ним) ни ночью (что главное) нет покоя: при задёргивании\отдёргивании соседями штор, происходит невероятной силы шум (причём среди ночной тишины, неожиданно!, как сегодня, например, в 2.30 ночи), что аж подбрасывает на постели...
Что за два года сделано:
1. с ними переговорено нормально - они говорят ничего не знаем, ничего не шумит.
2. написано письмо в ЖЭК (у нас это бустас называется) и копия им - никакой реакции.
3. сообщил участковому - он отмахнулся и сказал: радуйся, что у нас трамваи не ходят.
Начала развиваться фобия ночи и сна... чё делать не знаю...



)
я использование труб сразу отмёл, по причине, что может задеть соседей выше. ну икс его зна как там реально звук пойдёт и до куда дойдёт, пробовать нужно

Могу ещё подкинуть. У меня их много.