Вобщем изготовив в железе последний вариант, оказалось что он имеет свои преимущества и свои недостатки.
Преимущества:
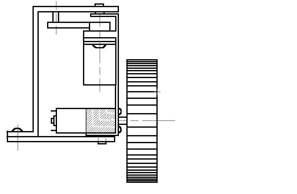
1. в изготовлении проще, меньше деталей (вторую полуось не ставил, прикрутил на два самореза качалку).
2. угол поворота колеса - 360град! (180+180)
Недостатки:
1. смотрится менее компактно (ну это фиг с ним)
2. жесткость конструкции стала хуже из-за длинных панелей, как поворотной так и "вилкообразной"
Та конструкция, на которую грешил SMT оказалась намного жестче, я ваще когда её в руках крутил и нагружал силами которые указал SMT, удивленно хмыкал: чё типо тут нежесткого? хоть и сделана из оц.жести 0,8. А эта из,1,2мм жести - гуляет как коза, хоть и, по всей длине пластин, ребра жесткости выгнул

...
Вот и выбираю: "то ли пойти купить по 3, но вчера, но маленькие, то ли по 5, но большие и сегодня"(с)