roboforum.ru

Технический форум по робототехнике.

Достали соседи

Все здесь

Достали соседи

Сообщение Vovan » 19 фев 2010, 12:09

Суть в следующем:
соседи снизу, установили гардины (для штор, эдакие швелерообразные, жестяные)и одним концом то ли прикрепили то ли упёрли в трубу отопления, которая проходит сквозь все этажи, но моя квартира получается ближайшей к этому касанию. Теперь, в течение уже двух лет, каждый день, ни днём (это фиг с ним) ни ночью (что главное) нет покоя: при задёргивании\отдёргивании соседями штор, происходит невероятной силы шум (причём среди ночной тишины, неожиданно!, как сегодня, например, в 2.30 ночи), что аж подбрасывает на постели...
Что за два года сделано:
1. с ними переговорено нормально - они говорят ничего не знаем, ничего не шумит.
2. написано письмо в ЖЭК (у нас это бустас называется) и копия им - никакой реакции.
3. сообщил участковому - он отмахнулся и сказал: радуйся, что у нас трамваи не ходят.
Начала развиваться фобия ночи и сна... чё делать не знаю... :(
_________
Sincerely,
Vovan
Аватара пользователя
Vovan
 
Сообщения: 3340
Зарегистрирован: 05 окт 2005, 12:03
Откуда: Литва
прог. языки: asm

Re: Достали соседи

Сообщение =DeaD= » 19 фев 2010, 12:30

труба сквозная или через батареи?
Проект [[Open Robotics]] - Универсальные модули для построения роботов
Аватара пользователя
=DeaD=
 
Сообщения: 24218
Зарегистрирован: 06 окт 2004, 18:01
Откуда: Ебург
прог. языки: C++ / PHP / 1C
ФИО: Антон Ботов

Re: Достали соседи

Сообщение executer » 19 фев 2010, 12:32

вставай среди ночи и дырки перфоратором сверли - и ниче не знаю, ниче не шумит :)
Аватара пользователя
executer
 
Сообщения: 784
Зарегистрирован: 30 янв 2009, 01:24
Откуда: Запорожье
прог. языки: Си, AvrASM, STL, САС, учу Си++
ФИО: Павел

Re: Достали соседи

Сообщение galex1981 » 19 фев 2010, 12:37

Запиши на диктофон шум и в прокуратуру или суд с этим иди...
if(!Operate) Read(pDatasheet);
Аватара пользователя
galex1981
 
Сообщения: 4363
Зарегистрирован: 04 дек 2008, 22:44
Откуда: Камышин
Skype: galk-aleksandr1
прог. языки: Kotlin, Java, C, C++, Assm, BasCom, VB, php
ФИО: Галкин Александр Владимирович

Re: Достали соседи

Сообщение Vovan » 19 фев 2010, 12:45

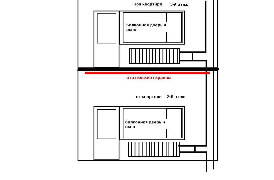
вот такое строение (см. рисунок):
2 galex1981: и как я там докажу что этот шум происходит 1.именно от батарей
2. именно в моей квартире 3. и именно ночью
Для ясности ещё инфа о соседях:
он - таксисит, график непонятный, и днём и ночью может спать, а может бодрствовать или быть на работе, она не работает (только шторы дёргает блин! :x )
есть две собаки кокеры...
Вложения
Otoplenie.jpg
_________
Sincerely,
Vovan
Аватара пользователя
Vovan
 
Сообщения: 3340
Зарегистрирован: 05 окт 2005, 12:03
Откуда: Литва
прог. языки: asm

Re: Достали соседи

Сообщение Angel71 » 19 фев 2010, 13:01

:) есть такая штука, как низкочастотные акустические колебания. при достаточной громкости можно вызывать моментальный панический страх. вопрос только в том, закрывает ли он окно на ночь и готов ли ты на "клин клином", если до него не доходит. звук никто не услышит, так что к окнам бежать и смотреть что происходит (а что там так шумит?) врядли будет.
Аватара пользователя
Angel71
 
Сообщения: 10668
Зарегистрирован: 18 апр 2009, 22:18
Предупреждения: -1

Re: Достали соседи

Сообщение yak-40 » 19 фев 2010, 13:06

Попробуй беруши. Я в них давно сплю. Ни тебе сигнализаций автомобильных ни шума соседей...
- Этот человек - не человек! это робот!
- Как? уже делают?!
- Делают!!!
Аватара пользователя
yak-40
 
Сообщения: 3037
Зарегистрирован: 23 окт 2007, 22:03
Откуда: Москва
прог. языки: С
ФИО: Евгений Яковец

Re: Достали соседи

Сообщение Vovan » 19 фев 2010, 13:08

Спасибо отозвавшимся :beer:
я вот тоже про инфра\ультразвук подумываю:
если вот я вокруг трубы (максимально близко к их квартире) намотаю мощную катушку и через 100вт усилок на катушку буду подавать уз по принципу догчейзера, пройдёт уз по трубам? и будет ли он генерироваться ваще?
Мысль такая: датчик (микрофон) на батарею леплю и при очередном дёргании минут на 15 включится уз генератор - собаки должны как-то волноваться начать (я так думаю)... Пару недель их подресировать, а потом можно и отключить систему, думаю у них ужЕ рефлекс выработается на ентот шум... Или это утопия?
зы: бируши отпадают (не хочу объяснять почему); перфоратор - а что долбить? да и другие соседи ни причём :( ...
я на всё готов, не только на "клин клином" :x
_________
Sincerely,
Vovan
Аватара пользователя
Vovan
 
Сообщения: 3340
Зарегистрирован: 05 окт 2005, 12:03
Откуда: Литва
прог. языки: asm

Re: Достали соседи

Сообщение Angel71 » 19 фев 2010, 13:17

может и не утопия. нужно наверно пробовать реализовывать, а там видно будет. :oops: я использование труб сразу отмёл, по причине, что может задеть соседей выше. ну икс его зна как там реально звук пойдёт и до куда дойдёт, пробовать нужно
yak-40, беруши это вариант пассивной защиты. всё бы хорошо, но. всю жизнь все должны будут эти шнягесы надевать?

Добавлено спустя 1 минуту 22 секунды:
:) вот на всё не нуна, по горячке делов натворить можно
Аватара пользователя
Angel71
 
Сообщения: 10668
Зарегистрирован: 18 апр 2009, 22:18
Предупреждения: -1

Re: Достали соседи

Сообщение avr123.nm.ru » 19 фев 2010, 13:28

Если вы с ними не поругались еще то попросиь включить систему при вас и послушать - сомневаюсь что им самим нравилось бы ночное гудение устройства. Или они не спят в той комнате ?

А вообще "клин-клином" - долбите по батареям, можно робота сделать чтоб долбил.

Особо продвинутые через вентиляцию соседям сероводород пускают. Металические трубки от тормозов ваз-2101 стоят не дорого и пропихнуть можно далеко по каналу.

Добавлено спустя 1 минуту 13 секунд:
робот типа пылесоса с гирей-бампером, а траба это типа его базовая станция :ROFL:
Читайте !
Аватара пользователя
avr123.nm.ru
отсылающий читать курс
 
Сообщения: 14195
Зарегистрирован: 06 ноя 2005, 04:18
Откуда: Москва
Предупреждения: -8

Re: Достали соседи

Сообщение Angel71 » 19 фев 2010, 13:33

Vovan писал(а):Что за два года сделано:
1. с ними переговорено нормально - они говорят ничего не знаем, ничего не шумит.
...

:) здаётся мне этот вариант уже с соседом опробован уже не раз
:x какой сероводород, вы что? долбать и вообще издавать слышимые другим (кроме соседа) звуки имхо наф-наф, слишком много внимания от других соседей
Аватара пользователя
Angel71
 
Сообщения: 10668
Зарегистрирован: 18 апр 2009, 22:18
Предупреждения: -1

Re: Достали соседи

Сообщение Vovan » 19 фев 2010, 13:35

Да говорил с ними много раз - они отморожены, не понимают типо нифига... Чё вам типо надо? отстаньте! По батареям долблю: спать ложусь с резиновым молотком рядом... при внезапном пробуждении метаю молоток в в сторону батареи - грохот невероятный - бесполезно! Сероводород не вариант: 1. наказуемо,2. они не поймут что это связано со шторами... робота (Robosapiensa) уже ставил к батарее (у него есть микрофон и он реагирует на громкий шум и стучит по батарее) - да пофик это всё этим уродам :bad:
_________
Sincerely,
Vovan
Аватара пользователя
Vovan
 
Сообщения: 3340
Зарегистрирован: 05 окт 2005, 12:03
Откуда: Литва
прог. языки: asm

Re: Достали соседи

Сообщение avr123.nm.ru » 19 фев 2010, 13:45

Тогда сероводород. Очень помогает в размораживании. Только в малых дозах.

Добавлено спустя 4 минуты 43 секунды:
Vovan писал(а):они не поймут что это связано со шторами...
Естетсвенно что отморозки ничего не понимают.
Читайте !
Аватара пользователя
avr123.nm.ru
отсылающий читать курс
 
Сообщения: 14195
Зарегистрирован: 06 ноя 2005, 04:18
Откуда: Москва
Предупреждения: -8

Re: Достали соседи

Сообщение Vovan » 19 фев 2010, 13:46

2avr123.nm.ru:
тогда объясните как им пользоваться:
1. когда именно его подавать в квартиру соседям?
2. "в малых дозах" - а именно в каких?
3. об этом их предупредить что ль?
4. как самому не стать жертвой его применения?
5. как доказать следственным органам что это не я?
6. как подача с\водорода связана с внезапно создаваемым шумом?
_________
Sincerely,
Vovan
Аватара пользователя
Vovan
 
Сообщения: 3340
Зарегистрирован: 05 окт 2005, 12:03
Откуда: Литва
прог. языки: asm

Re: Достали соседи

Сообщение Doktor » 19 фев 2010, 13:46

Отписался в личку с советами 8) Могу ещё подкинуть. У меня их много.
Аватара пользователя
Doktor
 
Сообщения: 293
Зарегистрирован: 15 июн 2009, 17:24
Откуда: Омск
Skype: bashnia_a.k.a_doktor
ФИО: Александр

След.

Вернуться в Свободное общение

Кто сейчас на конференции

Сейчас этот форум просматривают: нет зарегистрированных пользователей и гости: 0

cron